• Welcome to Ansar Interiors
  • Follow us

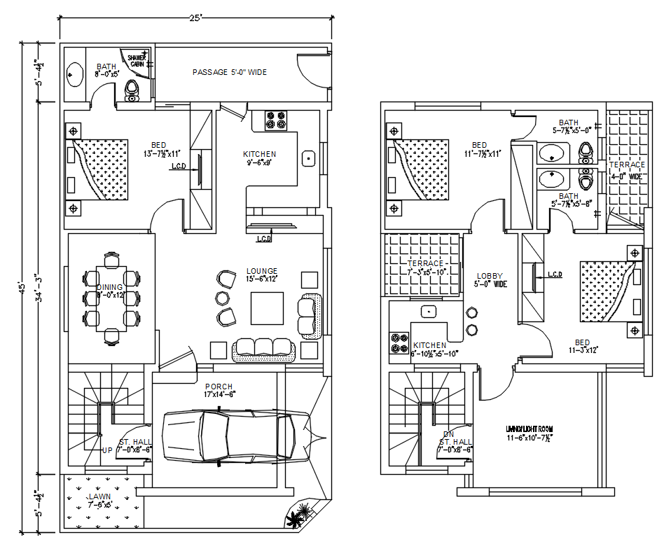
Drawings

CAD Drafting

We offer precise and reasonably priced cad drawing services for all types of architecture and interior design projects, including residential, commercial, and industrial. Our 2D CAD drafting is highly detailed to assist construction organizations in lowering construction costs and optimizing raw materials utilized in building.

We produce the cad designs by the project specifications and ensure delivery in the shortest period feasible.

Our qualified engineers and designers are experts in creating CAD designs for large and complicated projects utilizing industry-standard programs like AutoCAD and Revit.

When creating the CAD drawing, we meticulously adhere to worldwide and industry-specific design standards. Our CAD drafting services provide builders, contractors, engineers, and architects with a thorough understanding of the projects.

3D Rendering

❖ Portfolio Home Trends enables you to decrease the lead time for client project ideation, conceptualization, and implementation by providing 2D and 3D modeling services. Our professionals collaborate with architects, owners, interior designers, property sellers, real estate developers, contractors, engineers, and consultants to create interior or exterior architectural templates that meet their project standards.

❖ Our 3D building models provide a specific overview of the actual architectural framework before its completion when constructing various styles of architectural models such as architectural floors, apartments, bungalows, resorts, shopping centers, hotels, colleges, universities, restaurants, hospitals, residential and industrial structures.

❖ It can also assist clients in completing the sale or lease of their properties.


3D modeling

❖ 3D modeling is successfully getting the volumetry of architectural designs in the field of architecture to envisage them before their completion, to spot inconsistencies, or provide an easy and expected grasp of how our work will appear after it is completed

❖ The 3D model would provide you with a comprehensive picture of your projects in interior and external areas, facades, and aerial views based on your demands. You will be able to more clearly establish the processes for its development and uncover design errors or undesirable features early in the project cycle.